Umbau und Neustruktierung eines Schulgebäudes zum Kita- und Bürogebäude Schmilinskystraße

Die ehemalige Domschule wird ein Ort zum Spielen und Arbeiten

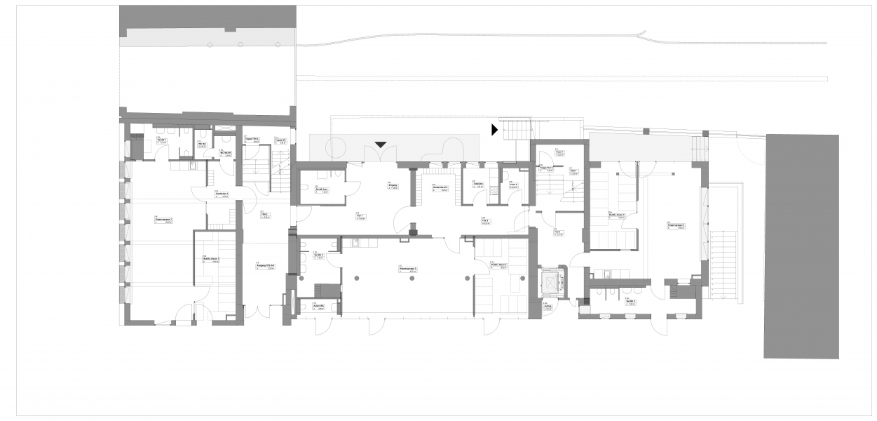
Das bestehende Schulgebäude neben dem Mariendom in Hamburg-St. Georg, das wie alle Gebäude des Dom-Areals zum Erzbistum Hamburg gehört, wird umfassend umgebaut und funktional neu strukturiert. Ziel ist es, das Gebäude so anzupassen, dass es künftig zwei voneinander unabhängige Nutzungen aufnehmen kann: eine Kindertagesstätte in den unteren Geschossen sowie die Verwaltung der Kita-Abteilung des Erzbistums in den oberen Etagen.

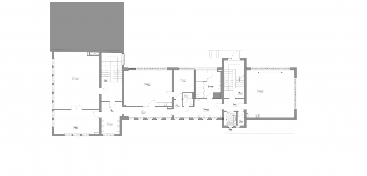
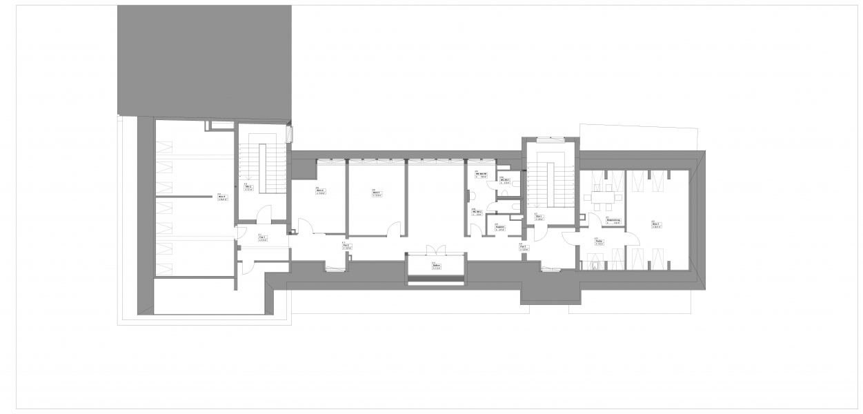
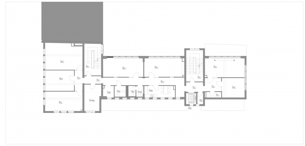
In den ersten drei Geschossen entsteht eine moderne Kita mit Krippenbereich und integrierter Aufwärmküche. Die darüberliegenden Ebenen vom 3. Obergeschoss bis zum Dachgeschoss werden zur neuen Bürofläche für die Kita-Abteilung des Erzbistums Hamburg umgebaut. Um eine klare Trennung der Nutzungen sicherzustellen, erhält das Gebäude zwei neue Eingänge an der Südseite. Der Haupteingang der Kita liegt mittig im Erdgeschoss des mittleren Gebäudeteils, während die Bürogeschosse über eine neu geplante Außentreppe erschlossen werden. Zusätzlich wird ein neuer Aufzug integriert, um eine vollständige Barrierefreiheit herzustellen.

Mit der Umnutzung vom Schulgebäude zur Kita mit Büronutzung wird die Grundrissstruktur des Hauses grundlegend überarbeitet. Innenwände werden abgebrochen und neu gesetzt, Sanitärbereiche ergänzt oder verlegt und die Küchenfunktion vom Erdgeschoss ins 2. Obergeschoss verschoben. Diese baulichen Eingriffe führen zu einer umfassenden gestalterischen Neuausrichtung des Innenraums. Sämtliche Decken- und Bodenbeläge sowie Teile der Wandoberflächen werden erneuert, sodass eine zeitgemäße, auf die Bedürfnisse der neuen Nutzer abgestimmte Gestaltung entsteht. Energetisch wird das Gebäude durch einen teilweisen Fensteraustausch und eine vollständige Innensanierung optimiert, sodass ein modernes, funktional klar gegliedertes Gebäude im besonderen städtebaulichen Kontext des Mariendom-Areals entsteht.

Zurück